Hawaii Living

Mamo Rd (Kekaha)

1 / 23
Photo 22 of Mamo Rd #1, Kekaha
Photo 1 of Mamo Rd #1, Kekaha
Photo 2 of Mamo Rd #1, Kekaha
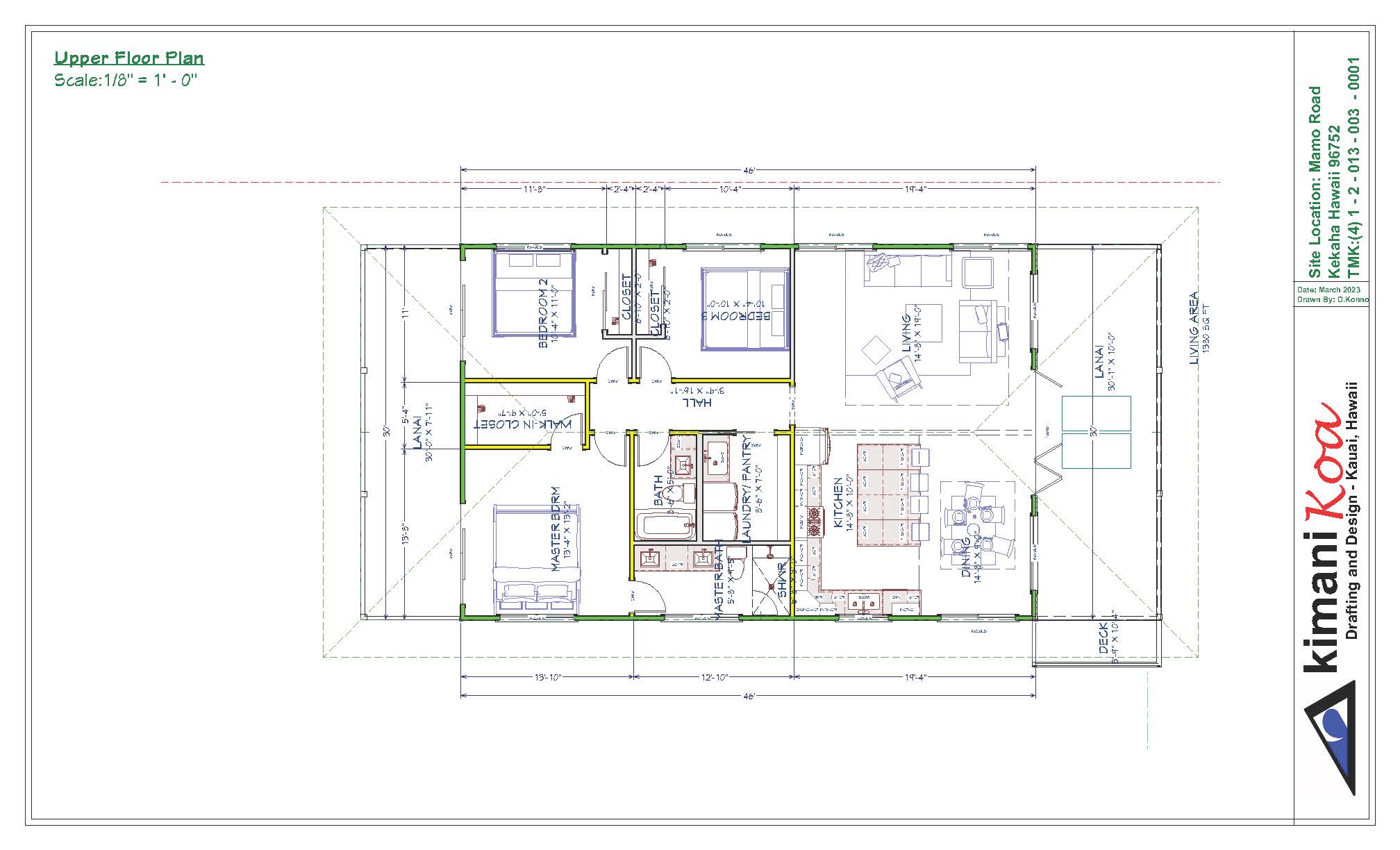
Description

Level vacant corner lot just steps from the beautiful black sandy beach in Kekaha where you can enjoy the sunsets, beach and water activities. Lot is located on the ocean side of the HWY in a great neighborhood. Lot qualifies for a single family dwelling and ARU (additional rental unit), please see the attached ARU permit. ARU may be a detached building. See attached building plans for a 2 bedroom/2 bath home and an attached 1 bedroom/1 bath ARU. Water meter box and the water facility charge paid. Easy access to beautiful Polihale and Kekaha Beach, PMRF. Kikiola Boat Harbor and Waimea Canyon.

Mamo Rd #1, Kekaha
 
The MLS properties are based on information from the Multiple Listing Service of Hicentral MLS, Ltd. Listings last updated on December 22, 2025. Information is deemed reliable but not guaranteed.
- listing courtesy Aloha Sotheby's Intl Realty - Kaua'i.
  • MLS: 714482
  • TMK: 4120130030001
Request Info / Schedule Showing
Other land for sale
Buyer and Seller have reached an agreement and are under contract. The sale may be subject to one or more contingencies.